REQUEST A TOUR If you would like to see this home without being there in person, select the "Virtual Tour" option and your advisor will contact you to discuss available opportunities.
In-PersonVirtual Tour

$ 3,125
Active
17016 25 Mile RD Macomb Twp, MI 48042
1,500 SqFt
UPDATED:
Key Details
Property Type Commercial
Listing Status Active
Purchase Type For Rent
Square Footage 1,500 sqft
MLS Listing ID 58050172892
Year Built 2024
Lot Size 0.580 Acres
Acres 0.58
Property Description
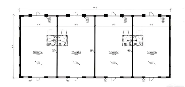
6000 Sq Ft available- Up to 4 units at 1,500 sqft each Only available C-1/ O-1 on 25 Mile
Location
State MI
County Macomb
Area Area03081Macombtwp
Interior
Heating Forced Air
Cooling Other
Fireplace No
Exterior
Parking Features ParkingLot
Community Features Curbs
View Y/N No
Building
Foundation Slab
Sewer Public Sewer
Water Public
New Construction No
Schools
High Schools Utica
School District Utica
Others
Acceptable Financing Lease
Listing Terms Lease
Special Listing Condition ShortSaleNo, Standard

©2026 Realcomp II Ltd. Shareholders
Listed by Boyd C. Kraft of Pilot Property Group - Residential LLC
Nearby Locations
GET MORE INFORMATION





